
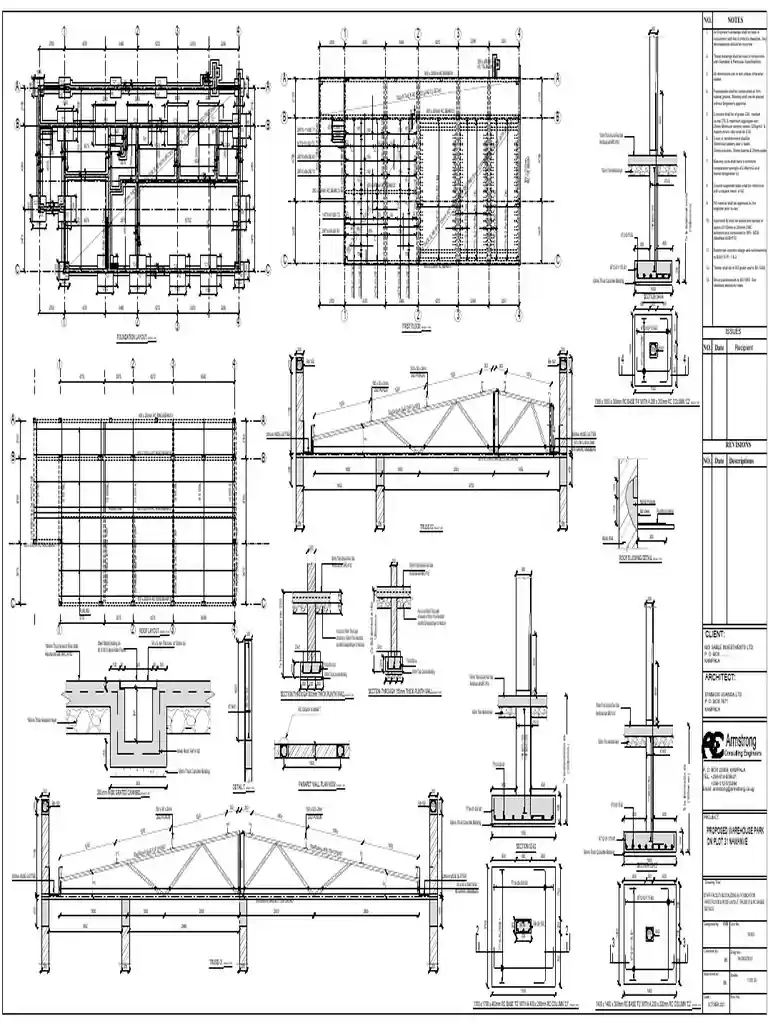
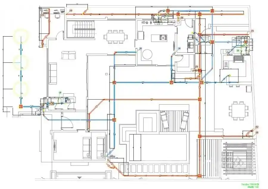
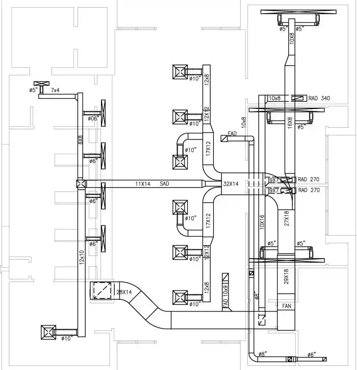
Construction Drawing
Every great building starts with a great plan. At SHRISTI, we offer expert Construction Drawing Services in Chennai and Building Plan Services in Chennai that bring your architectural ideas to life. Our detailed plans and accurate drawings form the foundation for safe, efficient, and high-quality construction.
Our Construction Drawing and Building Plan Services
We provide complete drawing and planning solutions for both residential and commercial projects. At SHRISTI, we deliver accurate, compliant, and professional construction drawings that form the foundation for successful building projects.
Why Choose SHRISTI for Construction Drawings in Chennai?
Every great building starts with a great plan. At SHRISTI, we offer expert Construction Drawing Services in Chennai that bring your architectural ideas to life with precision and professionalism.
Experienced Team
Skilled architects, structural engineers, and draftsmen with years of industry experience.
Detailed Drawings
Every plan is designed with precision and attention to detail.
Custom Designs
Tailored solutions based on your site, needs, and budget.
Quick Turnaround
We deliver accurate drawings on time to keep your project moving.
Technical Documentation Workflow
9-phase precision drawing development process
Project Discovery
Site Documentation
Concept Development
Technical Drafting
Engineering Review
Material Specification
Approval Preparation
Compliance Verification
Documentation Delivery
Project Discovery
Site Documentation
Concept Development
Technical Drafting
Engineering Review
Material Specification
Approval Preparation
Compliance Verification
Documentation Delivery
Contact SHRISTI – Start Your Building Project with Confidence
Looking for professional Construction Drawing Services in Chennai or reliable Building Plan Services in Chennai?
Trust SHRISTI to deliver high-quality designs, accurate drawings, and end-to-end support for your construction project.
Call us today or Get a Free Estimate to start designing your dream building with Chennai's trusted experts.
Trusted by 200+ clients in Chennai • Accurate Drawings • Professional Plans • Timely Delivery
Let us create precise, compliant construction drawings that form the perfect foundation for your dream project.






